家族根系浩大,人生才得丰茂。基于传统的人居主义,家族大宅被认为是居住的终极目标,在传承家族精神的同时,更引领生活形态的不断更新,被赋予高阶生活的使命与哲思。在传统西安楼市生活之上,万瑞府立于城市极值中心,以打造约440㎡大平层,将重叠繁复的家族生活铺陈开来,潮流与隽永在超前的尺度中碰撞,延伸出传世人居的腔调。

时代变迁,潮流更迭,唯一席风景与建筑共同被传承,在时间的沉淀中诠释生活的质感与韵味。得益于城市极值中心的土地天赋,万瑞府对望唐城墙遗址公园约3700米公园大道,以落地巨幕阳台,将景观视野和空间感无限放大,缔造西安楼盘中绝无仅有的视觉体验,将生活审美化的同时亦将审美生活化。

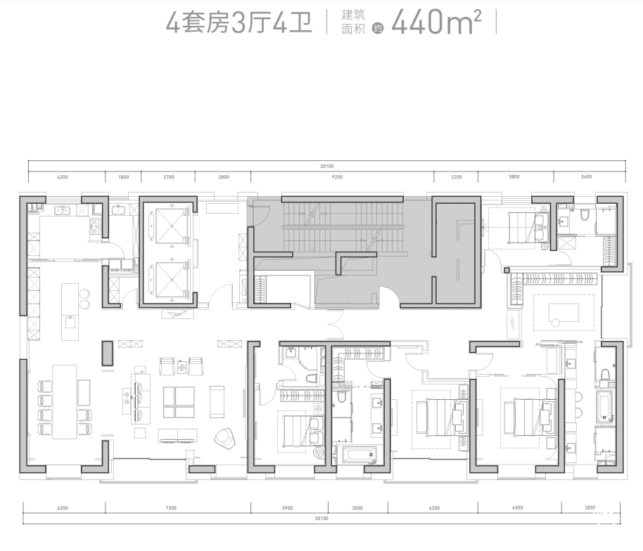
城市的高阶人居中,生活需求是整个空间尺度的度量衡。有别于西安楼市其他楼盘的繁杂分区,万瑞府使亲密与私密完美融聚,平衡恰如其分。设计的纵深成就生活的朗阔,空间的多重布局,造就家族多重生活场景的演绎。于此际会塔尖圈层,共论天下的同时,亦可共享天伦之乐。
四房三厅四卫的高定配置,将几代人的生活完美平衡,家族成员在互相照顾的同时亦能品尝自己生活中的喜好,相互独立的同时又都有共同活动的空间进行连接,日常相伴恰到好处,居住理想皆如愿。约11.5米全景餐客厅,看城市的伟大,自然流动于眼前;3大景观阳台,超越视野边界,南向双开,东向拥景,尺度无可比拟;独立中厨、开放西厨及优雅中岛,遐思之间,会饮觥筹;4间套房,搭配3大衣帽间,每一处私境的设计与考量,只为让生活质感渐次焕发。

张弛有度的空间,蕴藏着与高品质相关的一切生活场景。万瑞府,以臻稀尺度作序,铸就可传承的家族恒产;以需求为基石,将生活尺度完美平衡;以西安极景点缀,赋予生活以隽永,驭领西安楼市尺度之上。
转自:头号新闻网
【版权及免责声明】凡本网所属版权作品,转载时须获得授权并注明来源“中国产业经济信息网”,违者本网将保留追究其相关法律责任的权力。凡转载文章及企业宣传资讯,仅代表作者个人观点,不代表本网观点和立场。版权事宜请联系:010-65363056。
延伸阅读